Prezzo: € 650.000
Superficie: 80mq
APE: In attesa
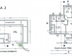
BUDONI. In località Ottiolu, in costruzione, due ville singole di ampia metratura con spettacolare vista mare e così composte: al piano terra, soggiorno con zona cottura, disimpegno, una camera matrimoniale con bagno privato, seconda camera, un bagno e spaziosa veranda coperta. Al piano inferiore con accesso indipendente, ampio locale con zona notte. La villa è dotta di climatizzatori, riserva idrica, doccia esterna, illuminazione perimetrale e grande giardino provvisto di impianto d'irrigazione automatico. Completa la soluzione abitativa una piscina con vista sul mare e sul comprensorio. Ottime finiture con pietra sarda e granito, Personalizzabile a richiesta del cliente. Per informazione contattare il Signor Manca Pierluigi al seguente numero: 339-4842476.









