Prezzo: € 210.000
Superficie: 70mq
APE: B
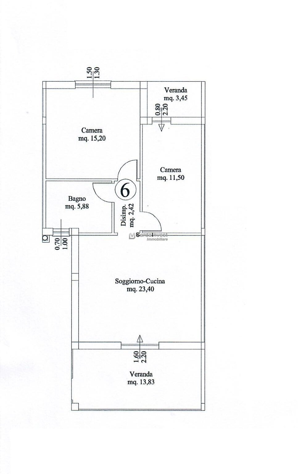
La Caletta, Nuovo appartamento arredato, di 70 mq commerciali, di tipologia trilocale al piano primo con ampi spazi abitativi, a breve distanza dal mare comodo a tutti i servizi e alle vie di comunicazioni. Gli ambienti comprendono; ingresso nel soggiorno con zona cottura provvisto di lavastoviglie , disimpegno, una camera da letto matrimoniale, una camera doppia con verandina coperta, bagno e veranda coperta di 14 mq. Dispone di aria condizionata con pompa di calore e riserva idrica. Completa la soluzione abitativa il post auto. Finiture di elevato livello qualitativo. Ottimo rapporto prezzo/mq/qualità. Per informazioni contattare il Signor Manca Pierluigi al seguente numero: 339-4842476.








