Prezzo: € 218.500
Superficie: 70mq
APE:86,39 KWh/m2anno
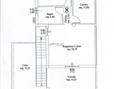
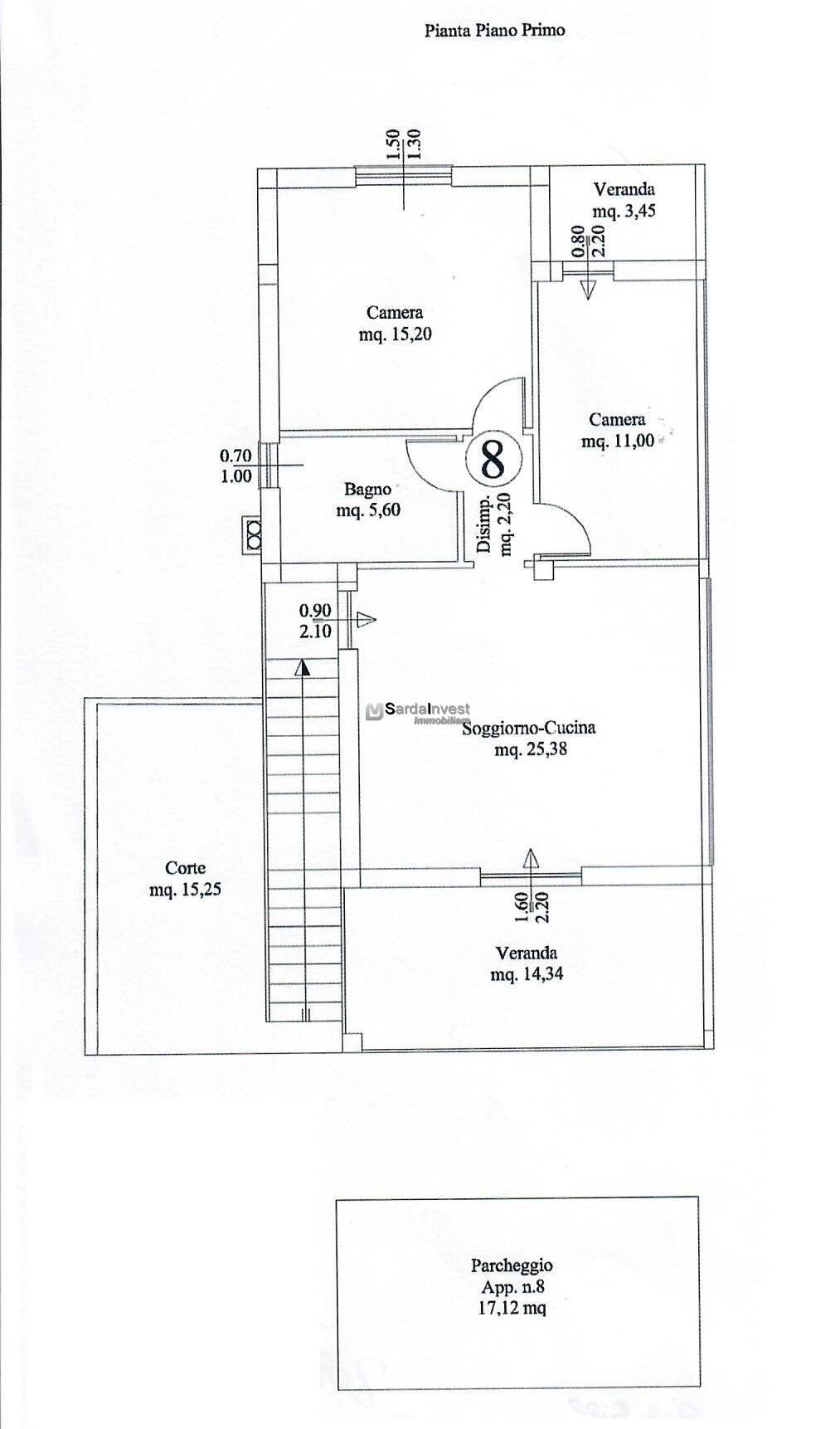
La Caletta. In zona residenziale, a breve distanza dal mare, nuovo appartamento di 60 mq calpestabili, di tipologia trilocale al piano primo con ampi spazi abitativi, comodo a tutti i servizi e alle vie di comunicazioni. Gli ambienti comprendono; ingresso nel soggiorno con zona cottura, disimpegno, una camera da letto matrimoniale, una camera doppia con verandina coperta, bagno e veranda coperta di 15mq. Dispone di aria condizionata con pompa di calore e riserva idrica. Completa la soluzione abitativa il post auto e corte laterale alla scala d'ingresso. Finiture di elevato livello qualitativo. Ideale per destinazione a locazione turistica . Per informazioni contattare il Signor Manca Pierluigi al seguente numero: 339-4842476.








