Prezzo: € 218.000
Superficie: 73mq
APE: B 78.48 KWh/m2anno
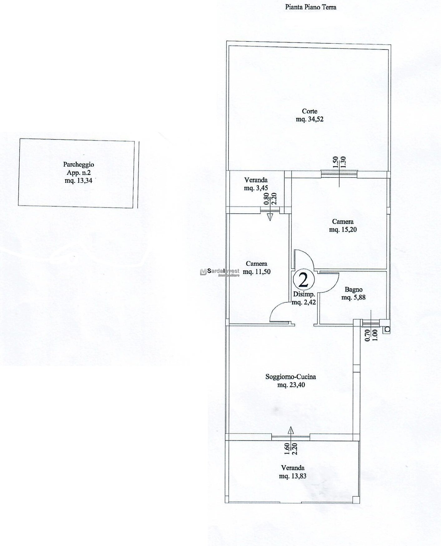
La Caletta. In pronta consegna, nuovo appartamento di tipologia trilocale con ampi spazi abitativi , al piano terra con giardino, comodo a tutti i servizi e completamente climatizzato. Internamente è così distribuito: veranda d'ingresso coperta, grande soggiorno, ampio disimpegno che conduce alla zona notte nella quale troviamo una camera da letto matrimoniale, una camera doppia dotata di piccola veranda coperta sdalla quale si accede al giardino- L'immobile è dotato di riserva idrica e posto auto. Ottimo rapporto qualità/prezzo/mq. Ideale per locazione turistica. Per informazioni contattare il Signor Manca Pierluigi al seguente numero: 339-4842476.








